Negozio in vendita

Castelvetrano, Via G. Gentile
€ 550.000
3 locali 3 locali
620 Mq 620 Mq
1 bagno 1 bagno

Negozio in vendita

Castelvetrano, Via G. Gentile

Descrizione annuncio

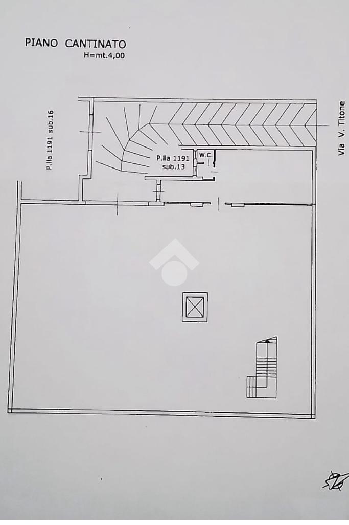
NEGOZIO COMMERCIALE IN VENDITA - CASTELVETRANO (TP)

Proponiamo in vendita un ampio locale commerciale di 620 mq complessivi, distribuiti tra piano terra, piano seminterrato entrambi destinati ad attività commerciale in ottimo stato.

L'immobile gode di una straordinaria luminosità naturale, grazie alle ampie vetrate presenti su tutti e quattro i lati, che garantiscono una visibilità a 360° e un forte impatto scenico verso l'esterno.

Sul retro del locale è presente un cortile di pertinenza, ideale come area di carico/scarico o come parcheggio privato per la clientela, con accesso agevole e anche ai veicoli. Il locale inoltre è dotato di doppi ingressi, per una gestione più funzionale degli spazi e impianto di videosorveglianza con telecamere gia installate.

SOLUZIONE PERFETTA PER ATTIVITA' CHE NECESSITANO DI AMPI SPAZI, VISIBILITA' E COMODITA' DI ACCESSO.

Contattaci per maggiori informazioni o per fissare un appuntamento chiama al numero 0924204308 o 3914632471

Mostra tutto

Nelle vicinanze

Trasporto pubblico Trasporto pubblico
stazione di Castelvetrano
stazione di Castelvetrano
700 m
Trasporto pubblico
690 m
Ricariche auto elettriche Ricariche auto elettriche
Castelvetrano Martiri d'Ungheria | EnelX
1,5 Km
Castelvetrano Caduti di Nassiriya | EnelX
2,9 Km
Scuole Scuole
istituto commerciale
970 m
Liceo scientifico M. Cipolla
1,1 Km
Liceo classico Giovanni Pantaleo
1,5 Km
Scuole
1,6 Km
Istituto Professionale di Stato Enogastronomia e Ospitalitá alberghiera Virgilio Titone
2,4 Km
Farmacia Farmacia
Ingrassia Daniela
310 m
Spinelli Sandro
870 m
Giardina Aurelio
1,2 Km
Ferracane Mariangela
1,2 Km
Cardella Dorotea
1,3 Km
Ospedali Ospedali
Presidio ospedaliero Vittorio Emanuele II
1,8 Km
Supermercati Supermercati
Il Centesimo
2,8 Km
Negozi Negozi
Mary Group
1,1 Km
mary Sposa
1,1 Km
Egitto
2,7 Km
Ristoranti Ristoranti
La Collinetta
820 m
Area 14
2,9 Km
Mostra tutto

Caratteristiche

Rif.:
61146220
Piano:
1 di 3 (Piano su più livelli)
Posti auto:
10
Condizionamento:
Autonomo
Ascensore:
No
Riscaldamento:
Autonomo
Mostra tutto
Prezzo Prezzo
€ 550.000
Rata mutuo Rata mutuo
€ 2.592 / mese
Spese annue Spese annue
€ 0
Proponi il tuo prezzoProponi il tuo prezzo

Altre caratteristiche

Descrizione dei locali
Bagno Cieco

Classe Energetica

G
G
G
G
G
G
G
G
G
EP globale non rinnovabile:
175.00 kW h/m² anno
EP globale rinnovabile:
175.00 kW h/m² anno
EP invernale del fabbricato:
EP estiva del fabbricato:
Anno di costruzione:
1990
Riscaldamento:
Autonomo
Tipo impianto:
A radiatori
Tipo alimentazione:
Altro

Ti interessa visionare l'immobile?

Fissa un appuntamento  Fissa un appuntamento

Richiedi informazioni

Clicca su Leggi per aprire l'informativa
* Questi campi sono obbligatori

Calcola il tuo mutuo

Semplice e senza impegno
Anticipo

( % )
Mutuo

( % )

pochi semplici passi

inserisci i tuoi dati
Questionario completato
Grazie per aver richiesto un appuntamento senza impegno con un nostro Consulente del Credito e Assicurativo.

Hai inserito correttamente tutti i dati necessari e a breve riceverai una e-mail con un link da convalidare per inviare i tuoi dati.
Affiliato
Impresa Golfo Sas
Via Gemma D'oro, 19 91014 Castellammare Del Golfo (TP)

Il nostro staff


  • Giorgia Ramagna
    Collaboratrice

  • Alessandro Tomasino
    Affiliato
Via Gemma D'oro, 19 91014 Castellammare Del Golfo (TP)
Zona: Castellammare del Golfo-Carini-Partinico-Alcamo-San Vito-Castelvetrano
Mostra su mappa
Affiliato
Impresa Golfo Sas
Via Gemma D'oro, 19 91014 Castellammare Del Golfo (TP)

2026 Tecnocasa Franchising S.p.A. - P. IVA 08365160152 - Via Monte Bianco 60/A 20089 Rozzano (MI). Ogni agenzia ha un proprio titolare ed è autonoma. Privacy policy | Policy utilizzo | Cookie policy