Attività in vendita

Alcamo, Piano Santa Maria
Informazioni in agenzia
2 locali 2 locali
100 Mq 100 Mq
2 bagni 2 bagni

Attività in vendita

Alcamo, Piano Santa Maria

Descrizione annuncio

ATTIVITA' IN VENDITA AD ALCAMO (TP)

Nel cuore di Alcamo, in una zona centrale e dinamica, proponiamo in vendita un’attività già ben avviata inserita in un contesto commerciale vivace e frequentato ogni giorno.

La posizione è uno dei suoi punti di forza: una strada di forte passaggio, circondata da numerose attività come ristoranti, bar, farmacia, parruccheria, pub, fioreria e altri servizi che contribuiscono a creare un flusso continuo di persone durante tutta la giornata.

La presenza di diverse attività nelle immediate vicinanze rende l’area particolarmente attiva e attrattiva, ideale per chi desidera investire in qualcosa che abbia già visibilità e clientela.

Inoltre la zona dispone di parcheggi nelle vicinanze, un dettaglio importante che facilita l’accesso e rende il punto vendita ancora più comodo per i clienti.

L’attività rappresenta un’interessante opportunità per chi vuole intraprendere o ampliare il proprio progetto imprenditoriale in un contesto strategico, nel centro di Alcamo, dove movimento, servizi e quotidianità si incontrano ogni giorno.

Un’occasione pronta per essere portata avanti con nuove idee e nuova energia.

È possibile visionarlo tutti i giorni previo appuntamento telefonico chiamando ai nostri numeri 0924.204.309/3289257787.

Il nostro franchising, su richiesta, mette a disposizione dei propri clienti un consulente KIRON che si occupa della mediazione creditizia ed assicurativa.

OGNI AGENZIA HA UN PROPRIO TITOLARE ED E' AUTONOMA.

Mostra tutto

Nelle vicinanze

Ricariche auto elettriche Ricariche auto elettriche
Alcamo Messana | EnelX
1,2 Km
Alcamo Pia Opera | EnelX
1,2 Km
Conad Alcamo | EnelX
1,7 Km
Eurospin ALCAMO | ENELX
2,2 Km
Scuole Scuole
Istituto autonomo comprensivo "P.M.Rocca"
520 m
Scuole
830 m
San Givanni Bosco
1,2 Km
Istituto Tecnico Commerciale Statale G. Caruso
1,3 Km
Scuola di Marione
1,5 Km
Farmacia Farmacia
Benenati Giuseppe & Vincenzo s.n.c.
80 m
Manno
230 m
Manno Antonietta
420 m
Farmacia Porta Palermo
430 m
Di Lorenzo Franco Ernesto
510 m
Ospedali Ospedali
Ospedale San Vito e Santo Spirito
860 m
Supermercati Supermercati
Sciacca Supermecato
360 m
Mio Mercato
660 m
Conad
1,2 Km
CRAI
1,2 Km
Hard discount
1,4 Km
Negozi Negozi
Il Pastaio
90 m
Forno Santa Lucia
190 m
Panificio Garbo
220 m
Forno Scardina
270 m
Sisley
350 m
Bar Bar
Caffé Opera
240 m
Castello
250 m
My Café
340 m
45 Giri
420 m
Bar '900
490 m
Ristoranti Ristoranti
Punto Pizza
50 m
Pizza e Tradizione
90 m
Triscele
100 m
Locanda dei Matti
140 m
Lu Piscatu
150 m
Mostra tutto

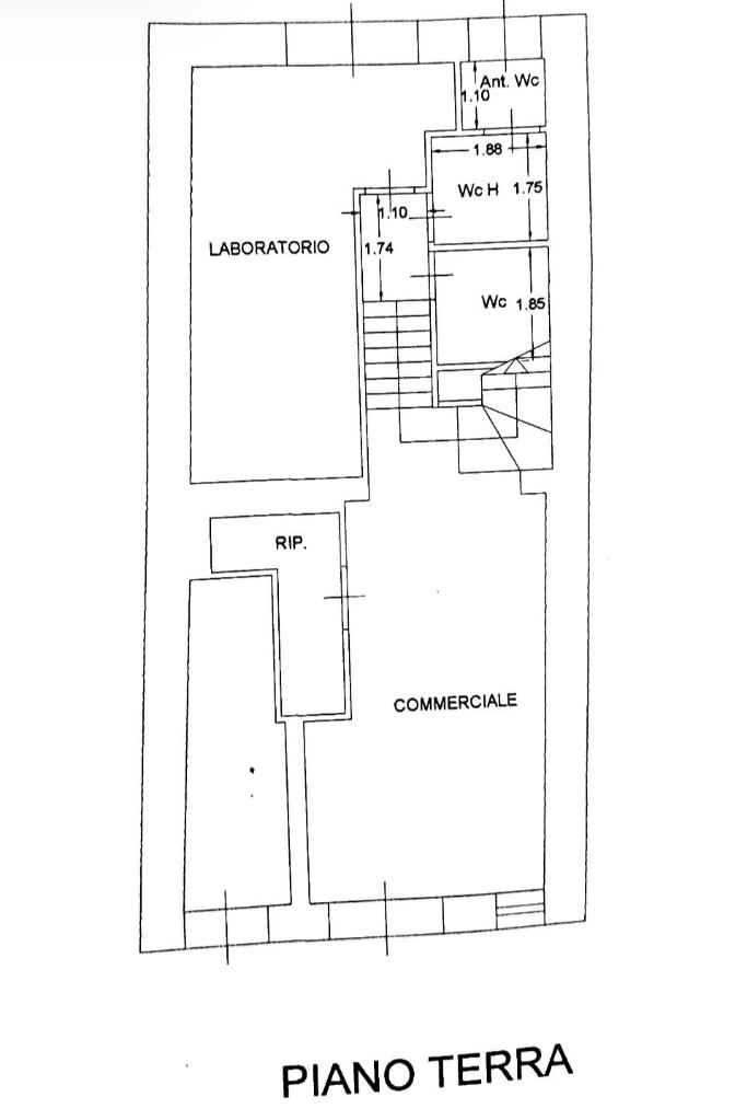
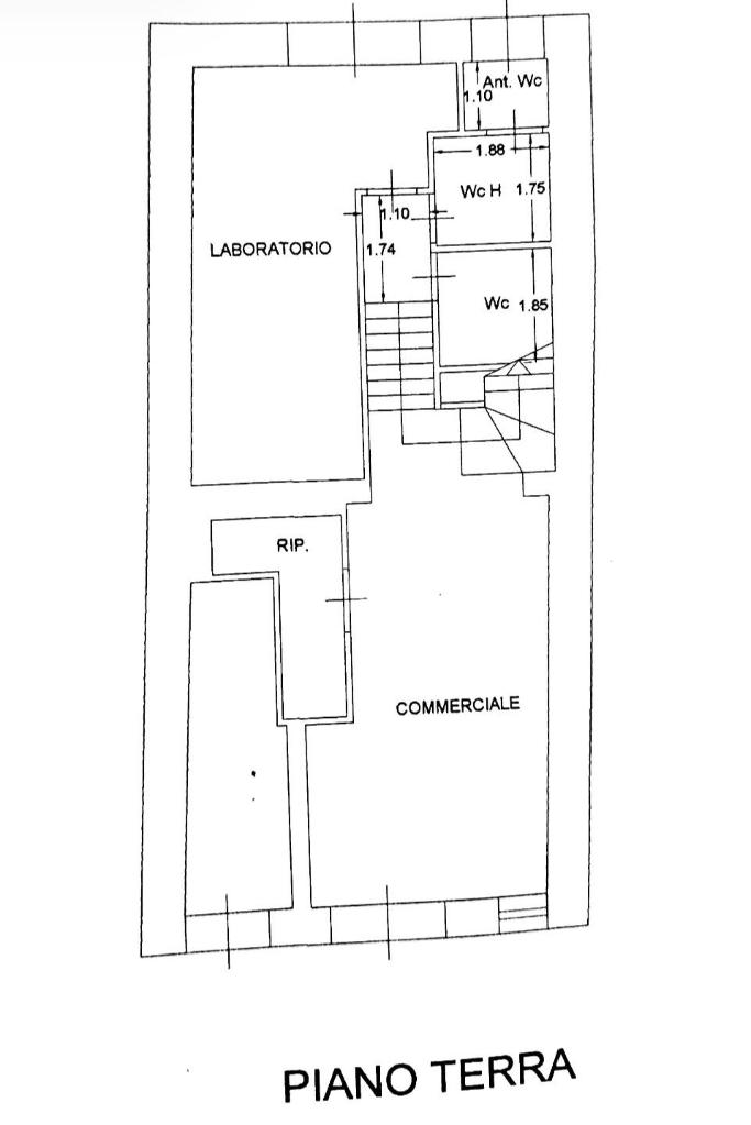
Caratteristiche

Rif.:
61182590
Piano:
Terra di 1
Totale piani:
1
Condizionamento:
Autonomo
Ascensore:
No
Riscaldamento:
Autonomo
Mostra tutto
Prezzo Prezzo
Informazioni in agenzia
Spese annue Spese annue
€ 120
Proponi il tuo prezzoProponi il tuo prezzo

Altre caratteristiche

Descrizione dei locali
Bagno Con Finestra

Classe Energetica

G
G
G
G
G
G
G
G
G
EP globale non rinnovabile:
175.00 kW h/m² anno
EP invernale del fabbricato:
EP estiva del fabbricato:
Anno di costruzione:
1990
Riscaldamento:
Autonomo
Tipo impianto:
A radiatori
Tipo alimentazione:
Altro

Ti interessa visionare l'immobile?

Fissa un appuntamento  Fissa un appuntamento

Richiedi informazioni

Clicca su Leggi per aprire l'informativa
* Questi campi sono obbligatori
Affiliato
Impresa Golfo Sas
Via Gemma D'oro, 19 91014 Castellammare Del Golfo (TP)

Il nostro staff


  • Alessandro Tomasino
    Affiliato
Via Gemma D'oro, 19 91014 Castellammare Del Golfo (TP)
Zona: Castellammare del Golfo-Carini-Partinico-Alcamo-San Vito-Castelvetrano
Mostra su mappa
Affiliato
Impresa Golfo Sas
Via Gemma D'oro, 19 91014 Castellammare Del Golfo (TP)

2026 Tecnocasa Franchising S.p.A. - P. IVA 08365160152 - Via Monte Bianco 60/A 20089 Rozzano (MI). Ogni agenzia ha un proprio titolare ed è autonoma. Privacy policy | Policy utilizzo | Cookie policy